Warning: mkdir(): No space left on device in /www/wwwroot/T1.COM/func.php on line 127

Warning: file_put_contents(./cachefile_yuan/longtu8888.com/cache/80/5b963/d0bc3.html): failed to open stream: No such file or directory in /www/wwwroot/T1.COM/func.php on line 115
无机房绿巨人视频APP官方网站下载-绿巨人视频黄APP电梯有限公司

产品概述

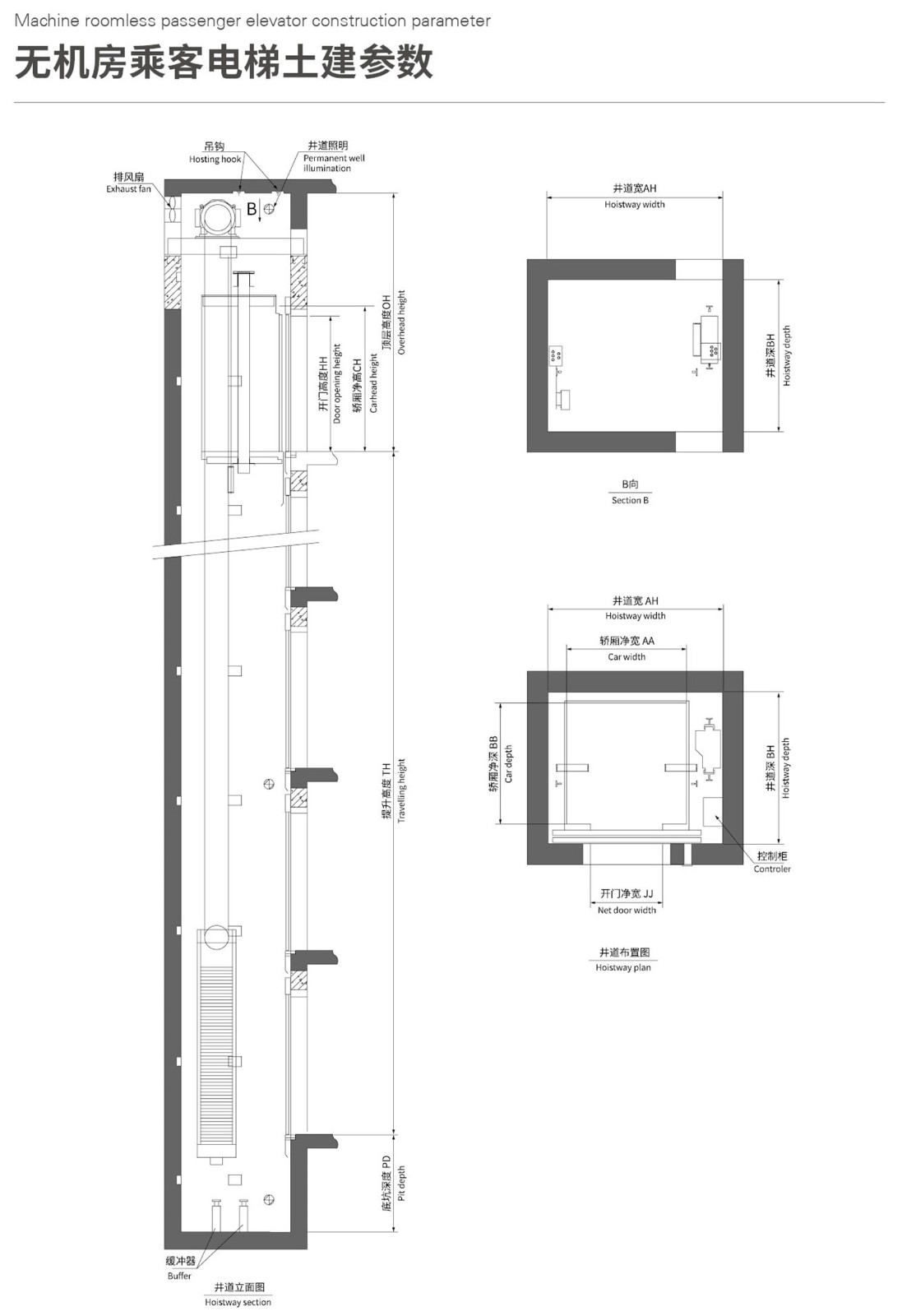
绿巨人视频黄APP无机房绿巨人视频APP官方网站下载,将外观与功能结合,提供丰富设计选项的无机房方案,集成了平稳运行、节约空间和节能环保等先进技术,为现代建筑有限的空间提供了无限的创造可能,深受市场青睐。适用于高层住宅、商务楼、酒店等对土建要求较高的场所。

产品详情


留言给绿巨人视频黄APP

您的姓名: *
您的手机: *
您的需求: *
所在城市: *

* 信息保护中,请放心填写

提交成功

您可进行下载相关资料了! 我知道了
come-here网站地图